概要及推荐理由
权易汇
临近主干道 临近公交站 临近地铁 临近机场 临近高速入口 产业园 办公 可分割 可注册 多栋/独栋写字楼 物业买卖 物业租赁 经开区 近郊
一、国家对外文化贸易基地
国家对外文化贸易基地(北京)是文化和旅游部与北京市政府基于部市合作框架,共同建立的全国首个国家级文化保税园,也是目前唯一的国家对外文化贸易基地和国家文化出口“双基地”。2012年3月,文化和旅游部授牌 “国家对外文化贸易基地”。2018年6月,商务部、中宣部、文化和旅游部、国家广电总局四部委认定天竺综合保税区为首批“国家文化出口基地”。2020年9月,基地纳入中国(北京)自由贸易试验区国际商务服务片区。
国家对外文化贸易基地(北京)充分发挥国家服务业扩大开放综合示范区、中国(北京)自由贸易试验区与天竺综合保税区“三区”政策叠加优势,围绕国家“一带一路”发展倡议和文化“走出去”发展战略要求,发挥空港“保税、免证、免税”政策和功能服务优势, “立足北京,服务全国,面向世界”,致力于打造国际国内文化贸易企业集聚、国际文化贸易与文化交流的核心枢纽。
国家对外文化贸易基地(北京)位于北京天竺综合保税区内,毗邻首都国际机场,占地面积235亩(15.7万平方米),总建筑面积约47万平方米。基地围绕"一带一路"发展倡议和文化发展战略要求,发挥空港保税政策、功能和服务优势,以国际文化贸易企业集聚中心(一期)、国际文化产品展览展示及仓储物流中心(二期)、国际文化商品交易服务中心(三期)三个功能区为国内外文化机构提供展示体验、交流推广、交易交割、孵化培育、融资投资与仓储物流等国际化服务。基地的建设发展立足北京、服务全国、面向世界,致力于打造成为全球文化展示、交流和交易中心。

二、一期项目:国际文化贸易企业集聚中心
国家对外文化贸易基地(北京)一期项目共有28栋企业独栋,每栋独栋产权,产证清晰,可办理产权过户。房产证面积为地上套内建筑面积,零公摊。已入驻优质企业包括中国文物交流中心、乐石文物修复中心、当红齐天、博乐德、当代唐人、大龙网龙工厂、懋隆国际、经科社、世纪新峰、亿安天下、强生制药等企业。目前剩余可售楼宇不多,为稀缺资源。
一期概况:已经建成28栋企业独栋写字楼
建筑面积:192000m²(85亩)
房屋性质:商品房,每栋楼单独一个产权证,五证齐全
地上楼层:地上5-7层
地下楼层:地下1层为展厅、商业配套和仓储空间;地下2层为800余个停车位
层 高:首层5.4米,标准层4.2米
独栋面积:2000m²-8000m²,如需大面积可选择相邻的两栋
地 铁:15号线后沙峪站,顺26路和空港15路直达基地
公 交:空港15、916路、855路等
周边配套:高端酒店、各类风味餐厅、咖啡、便利店、园区班车等
特别说明:目前还有11栋独栋楼宇可租可售,面积从2775平米-8000平米不等。开发商自持两栋楼宇可分割租赁,分割面积从50平米到1000平米不等,如需大面积可选择多层或独栋。


三、待租售项目
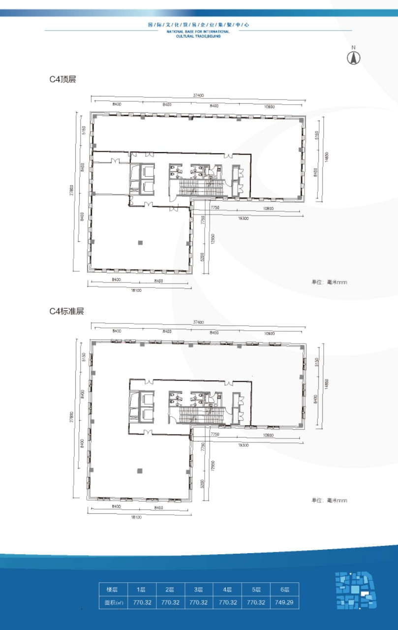
7、C4栋
7、C4栋


位置:位于国家对外文化贸易基地中心广场。
面积:总面积4600.89平米,共6层。
亮点:顶层有天井,可打造空中花园。
层高:首层5.4米,标准层4.2米。
承重:首层承重350公斤/平米,标准层承重200公斤/平米。
房本:房本面积为套内建筑面积,零公摊。









四、项目优势
1、政策优势
2012年3月,文化旅游部(原文化部)授牌“国家对外文化贸易基地”。2018年6月,商务部、中宣部、文化和旅游部、广电总局共同认定为全国首批“国家文化出口基地”。项目享受的政策优惠有:
(1)保税区:保税、退税、免税、外汇账户不限额等
(2)顺义区:税收返还、上市企业支持、跨境电商支持等
(3)北京市:总部政策、投贷奖等
(4)国务院:国务院关于综合保税区的政策、自贸区政策、北京市服务业扩大开放综合试点政策等
2、区位优势
项目位于首都临空经济核心区的中心位置,具有独特的保税区内地理优势;
3、平台优势
项目由北京市文投集团的全资子公司北京文投国际控股有限公司投资建设并运营管理,平台优势显著。
五、配套设施
1、基地配套
基地餐厅位于下沉广场中心区域,可容纳300余人同时用餐,餐厅配备4个独立包间,可满足企业商务宴请、员工聚餐等需求。

基地咖啡厅位于基地餐厅内,为入驻企业员工提供商务沟通、休闲交流场所。

基地健身房和瑜伽房,位于下沉广场

基地会议、论坛等功能区域

基地班车:

2、周边商圈
后沙峪商圈、南法信商圈及顺义商圈,拥有山姆会员店、新世界百货、隆华奥特莱斯等多家大型商场及各类餐饮配套。
3、住宿配套
基地周边3-5公里内拥有多个住宅小区,可租赁面积由30平方米-120平方米不等,租赁价格由3000元-12000元不等。
紧邻基地的天竺万科中心D座东侧2~9层的空间作为公寓配套,共计8300平米,由万科自有长租公寓品牌“泊寓”经营,致力于为周边商业项目客户提供住宿服务。


4、周边酒店
周边配套有多家酒店,分为豪华型、高档型、便捷型等。高端酒店如北京临空皇冠假日酒店距离5km,首都机场希尔顿酒店距离5km,北京首都机场国际酒店距离3km,价格约在500-1300元/间夜。
5、周边交通
公交车:空港15路、顺26路、顺28路、915、955、918等公交。
地铁:15号线后沙峪站,换乘空港15路和顺26路直达基地(距离基地1.8km),骑行10分钟。
六条高速公路:机场北线、机场第一高速、机场第二高速、京承、京平等环线公路。
| 有无电梯: | 有电梯 |
| 装修程度: | 精装修 |
| 交通情况: | 临近地铁站;临近公交站点 |
| 合作方式: | 整体出租 |
| 楼层: | 低 |
| 规划用途: | 办公;车库或车位 |
| 月租金: | 面议 |
| 面积: | 4600.89平方米 |
| 标准层高: | 4.20米 |
| 车位个数: | 面议 |
| 交通出行: |
公交车:空港15路、顺26路、顺28路、915、955、918等公交。 地铁:15号线后沙峪站,换乘空港15路和顺26路直达基地(距离基地1.8km),骑行10分钟。 六条高速公路:机场北线、机场第一高速、机场第二高速、京承、京平等环线公路。 |
| 楼盘特色: |
国家对外文化贸易基地(北京)一期项目共有28栋企业独栋,每栋独栋产权,产证清晰,可办理产权过户。房产证面积为地上套内建筑面积,零公摊。已入驻优质企业包括中国文物交流中心、乐石文物修复中心、当红齐天、博乐德、当代唐人、大龙网龙工厂、懋隆国际、经科社、世纪新峰、亿安天下、强生制药等企业。目前剩余可售楼宇不多,为稀缺资源。 |
推荐项目